Или начните с бесплатной консультации у Наших Специалистов
по телефонам: +7 920 271-96-78 / +7 910 150 05 43
Или начните с бесплатной консультации у Наших Специалистов
по телефонам: +7 920 271-96-78 / +7 910 150 05 43
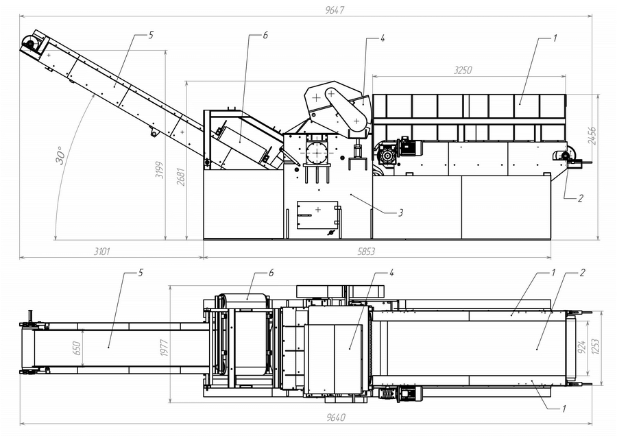
Дробильный комплекс «Щепа-2» предназначен для измельчения полетного лома и деревянных поддонов.
Не рекомендуется использовать данный агрегат для измельчения радиоактивных и взрывоопасных материалов, а также материалов средней и высокой абразивности.
Агрегат может быть использована как автономно работающая машина, так и в составе установки или технологической линии производства.
Агрегат должен быть установлен на твердой, ровной и свободной поверхности, как в помещении, так и на открытой площадке под навесом.
* параметры могут изменяться в зависимости от физических свойств материала.
** зависит от требований Заказчика. Размер получаемой фракции зависит от зазоров колосниковой решётки.
*** все значения являются расчётными, или взятыми на основе тех материалов с которыми использовался агрегат.
Узнать стоимость агрегата измельчения, а так же получить информацию о скидках и спецпредложениях, вы сможете по телефонам: +7 920 271-96-78 / +7 915 691-77-28.
Мы всегда рады ответить на Ваши вопросы.
Позвонив нам по телефону, Вы всегда можете получить полную и качественную консультацию со
стороны наших технических специалистов, что поможет Вам сделать правильный выбор.
+7 920 271-96-78 / +7 910 150 05 43
Вернуться в раздел: Агрегаты и комплексы